Comprehensive Design is a studio course that simulates (as best it reasonably can) the actual process of designing, from SD to CD, with budget, zoning code, and client feedback all in mind. The building is for 2 dance troops, modern and classical, with room for teaching, double-height spaces for professional dancers, and a space for the sets to be built (amongst other program).
Before you start drawing plans, it's a good idea to understand the parameters of the project. That's where the pre-design report comes into play. Producing three different projects that our client, or in this case, our classmates, would choose to pursue. The booklet covers issues like the meander line, where we cannot build, city codes, environmental research, and the specific requirements for the program inside.
Embracing the drama of ballet and the juxtaposition of heavy + light, we decided to design our building with the arch; it’s as graceful as it is powerful. However, since it was comprehensive design, we had to work within a budget range. This led me to the pre-cast arch used for civil construction, like waterways, overpasses, and small bridges. To transfer the loads downward as they would in civil projects, the void between the arch and the floor plate above would be filled with Geofoam, a high-density foam that evenly distributes loads, commonly used for on/off ramps and other civil projects. The arches are deployed as jack arches to create large open spaces and meet height requirements for jumping dancers (15ft, 4.57m).
While his course is intended to focus on the technical and practical, my partner and I quickly found ourselves enveloped in the discussion on the representation of structure. This was thanks to our two professors, who had polar theories on the importance of structure vs. form. At one point during a desk critique, one professor cited an OMA building, highlighting why structure matters; the other professor responded in kind by citing another OMA project where form presided over structure. Inevitably, we decided to have two façades truthfully represent the arch, while the other two lie while acknowledging they are doing so by revealing the undying framework. To emphasize this point, the façades are also distinguished through fabrication. The east-west sides are tilt-up concrete with custom brass caps at the anchor points that are shaped like the antapex of a fan vault. The north-south façades are concrete as well, but the pre-cast panels are formed to look like corrugated metal (another lie). Ultimately, the building is a mixture of truth, lies, and middle fingers in the representation of structure and form. And so The New Truth is born.
IMAGES ABOVE, wip study models: reflected ceiling plans, structural study models, hand milled brass end caps, site model casts, cool/playful laser cut leftovers
IMAGES ABOVE, elevations: north close-up, north, west, south, and east
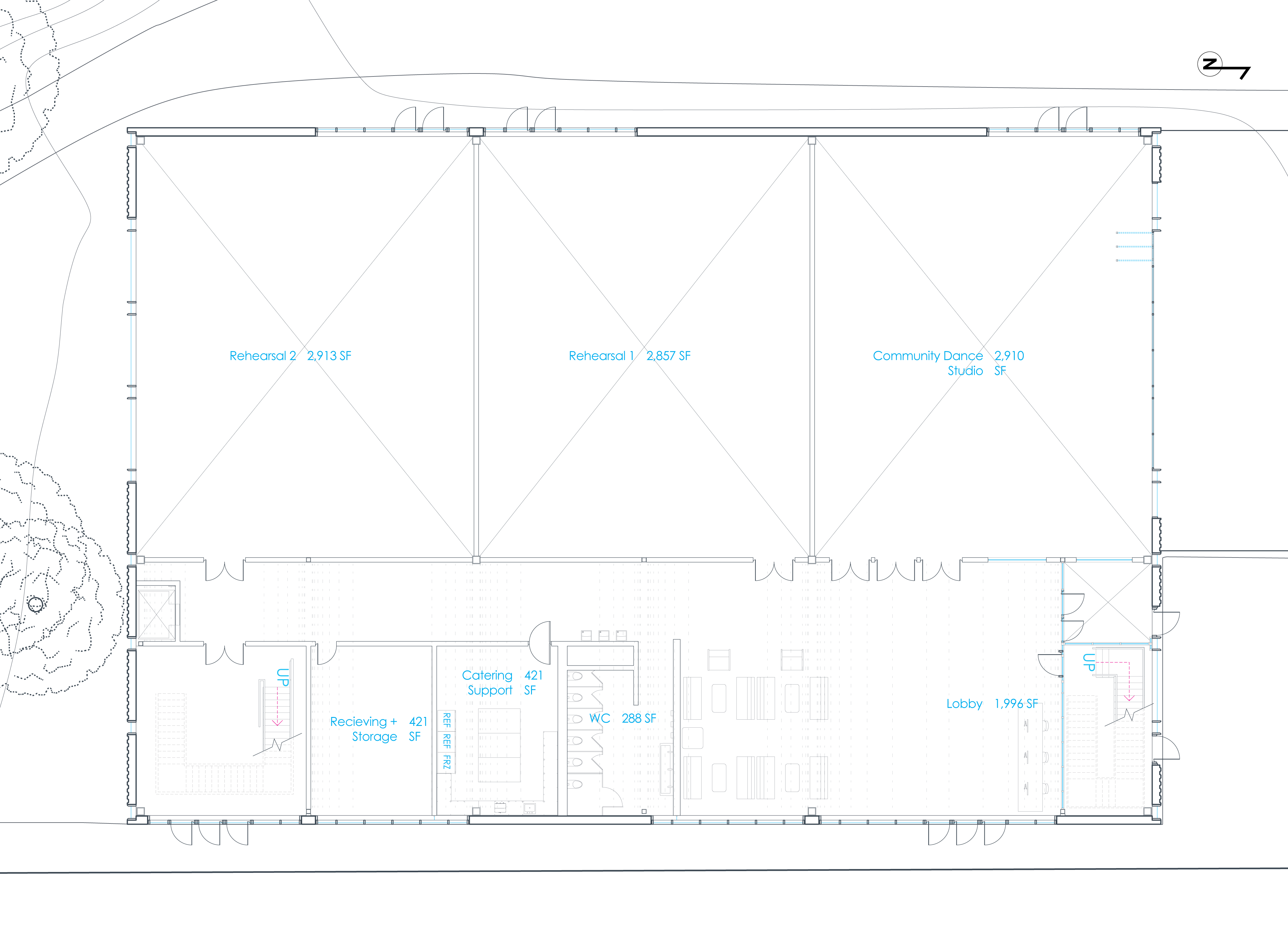
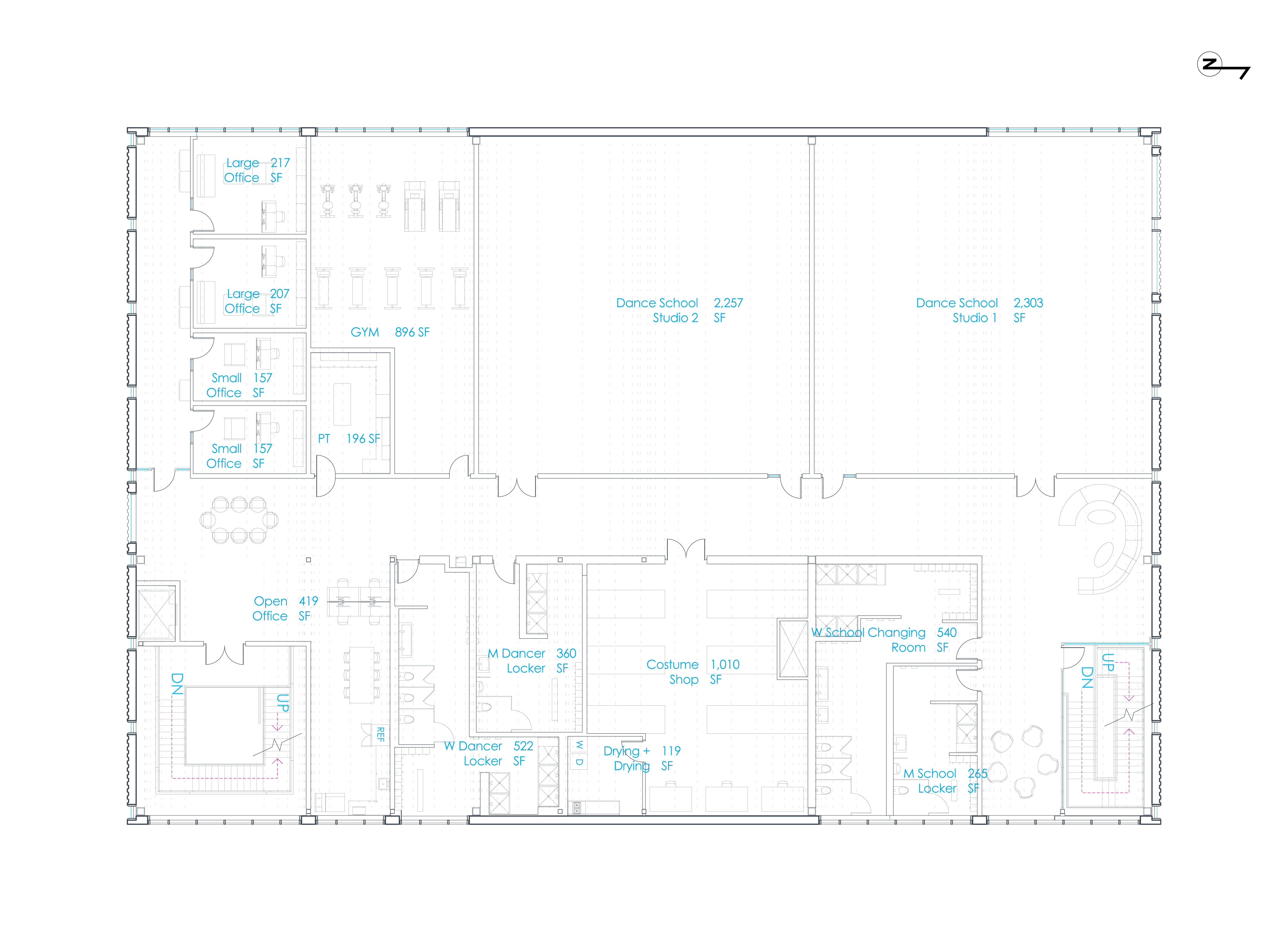
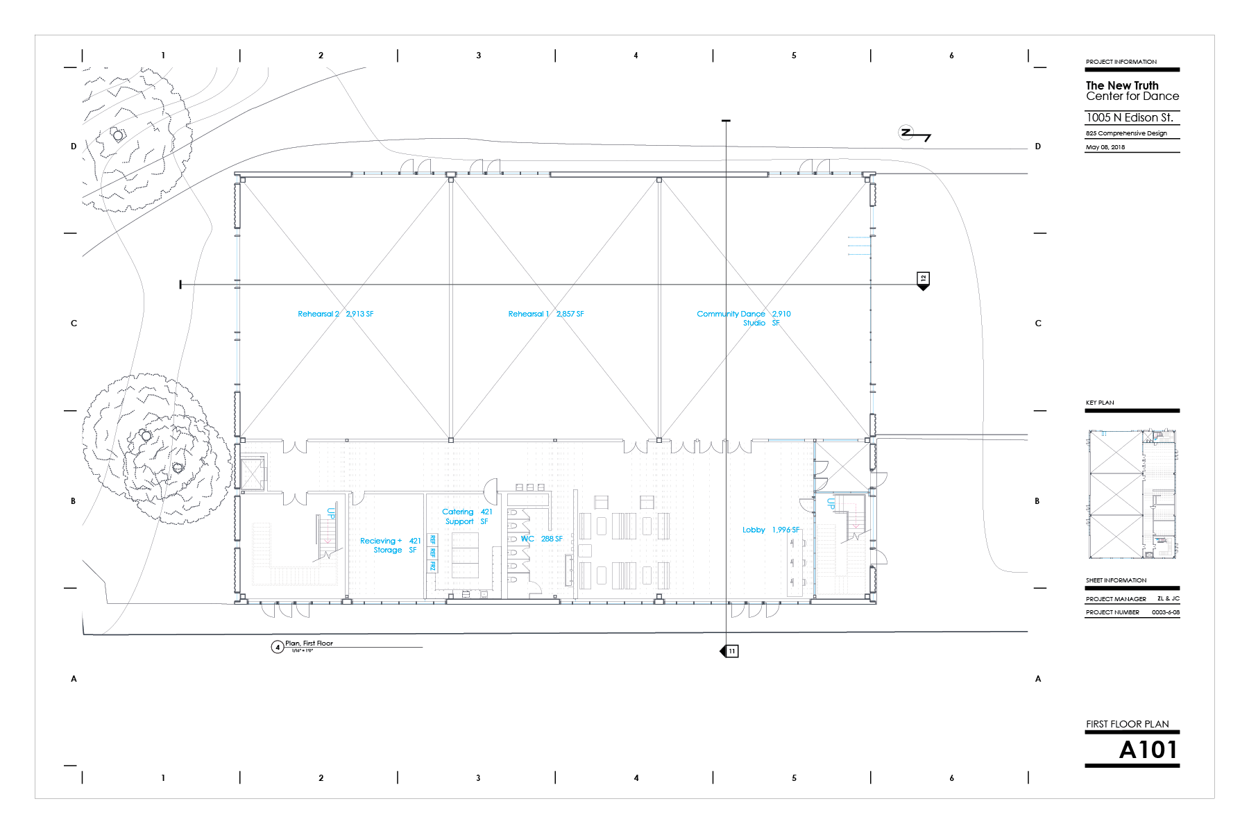
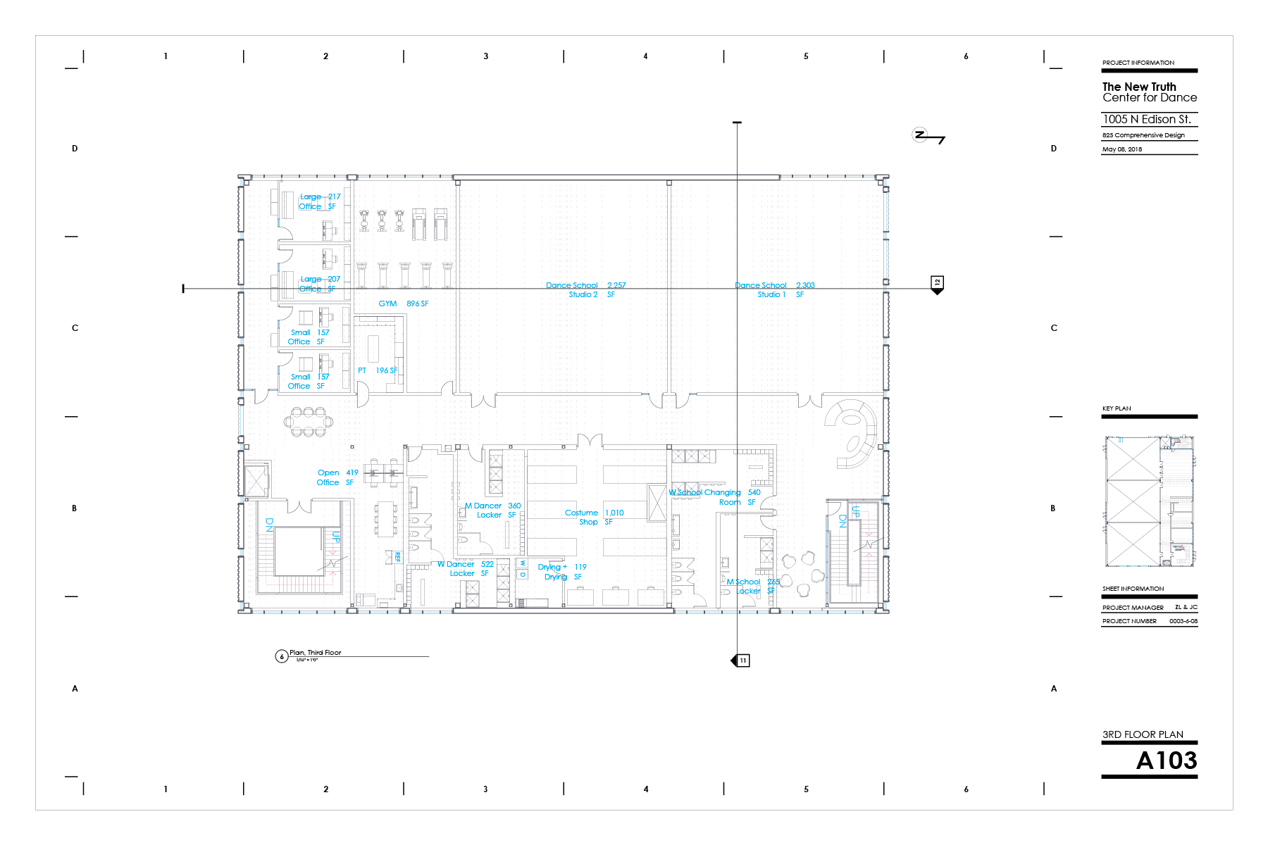
IMAGES ABOVE, L to R: site plan, first floor, second floor, and third floor plan
IMAGES ABOVE, wip study models: reflected ceiling plans, structural study models, and façade studies
IMAGES ABOVE, CD set including: rough budget, fire plans, and details
In spirit of heavy + light, classical and modern dance troops, the two façade typologies; I created a stark set of renders to juxtapose the playful hand-drawn ones by Joe Creer. The two styles of renders work hand-in-hand with the photography tends in the ballet world: high-key, relatively desaturated, soft; and dramatic black and white film with chiaroscuro lighting. Both renders work—but I like Joe's better.
IMAGES ABOVE, hand-drawn perspectives of key moments in, and around, the building (by Joe Creer)
IMAGES ABOVE, rendered perspectives of key moments in the building, processed to simulate Kodak TMax 3200
IMAGES ABOVE, final models on class site